-
História do Teatro
Inaugurado a 10 de junho de 1905, numa das ruas mais buliçosas de Matosinhos, o Theatro Constantino Nery foi durante décadas a sua mais importante sala de espetáculos. Ponto de encontro da comunidade e privilegiada "sala de visitas", foi mandado edificar por um modesto pedreiro de construção do Porto de Leixões, Emídio Ló Ferreira, após o seu regresso do Brasil, para onde emigrara no final do século XIX e onde constituiu assinalável fortuna. O nome do Teatro é, aliás, uma homenagem ao Governador de Manaus, protetor nos negócios que Emídio Ló Ferreira - conhecido também como Visconde de Trevões - desenvolveu em terras brasileiras.

Inauguração do TeatroFoi inaugurado o novo teatro da nossa vila com o nome de Teatro Constantino Nery, sito na Avenida Serpa Pinto e do qual é proprietário o nosso conterrâneo Emygdio José Ló Ferreira que, para a cerimónia de comemoração, convidou amigos seus.
Aspectos do Teatro
O Teatro Constantino Nery é um edifício muito elegante, de sólida construção e está decorado com pinturas de bonito efeito. No amplo átrio está instalado um elegante buffete, onde se venderão também bilhetes para os espetáculos.
Corre o longo da parede, na parte inferior, um extenso panorama, representando uma bonita marinha, com aves aquáticas no plano principal. O tecto é sustentado por duas elegantes colunas e dividido em seis rectângulos, nos quais, em complicados florões de fundo dourado, se destacam, num dos cantos, as quatro estações do ano, e nos dois do centro, flores dispersas.

O tecto côncavo da Sala de Espetáculos significa um lindo céu, onde a Fama parece coroar o velho e querido ator Francisco da Silva Taborda. As efígies de outros actores portugueses aparecem em medalhões na cornija, como Augusto Rosa, Eduardo Brasão, Rosa Damasceno.
Virgínia e os maestros Alfredo Keil, português e o brasileiro Gomes. No pano de boca está representada uma vista de Manaus, e na sanefa tem o retrato do actual governador de Manaus, Constantino NerY.
O teatro tem 8 camarotes de frente, 4 de cada lado, dois junto ao palco e duas frisas, 1 balcão de cada lado, que são ocupados com 30 cadeiras. A plateia composta de cerca de 400 cadeiras e as galerias acomodam 200 espectadores.
Fonte do texto:
“Theatro Constantino Nery – Resenha Histórica Através da Imprensa Local”, da autoria de A.S Maia Gonçalves e Belmiro Esteves Galego, edição Câmara Municipal de Matosinhos, ANCIMA e Fórum Matosinhense, Junho de 2011.

Décadas mais tarde, nos anos 1980, este espaço cultural entrou em decadência, ficando praticamente em ruínas. Consciente da importância cultural e histórica do imóvel, o Município adquiriu-o em 2001 e iniciou o processo de recuperação com a abertura de concurso público internacional para a escolha do projeto. O projeto vencedor foi o de Alexandre Alves da Costa, arquiteto e professor universitário na Faculdade de Arquitetura da Universidade do Porto.
Esta obra, de cerca de 3 Milhões e 500 mil euros, contou com um financiamento do Programa Operacional da Cultura de cerca de 1 milhão e 755 mil euros, realizando-se a inauguração do Teatro no dia 15 de novembro de 2008.
Do edifício antigo, preservou-se a volumetria e a fachada, que foi numerada, desmontada e armazenada em estaleiro para ser novamente reconstruída no mesmo local. A entrada no Teatro é feita pelo átrio que dá acesso direto ao Foyer, um espaço amplo com pé direito duplo. Deste ponto de partida acede-se a todos os espaços, nomeadamente à sala principal - uma sala de espetáculos funcional e de vanguarda com a particularidade das 235 cadeiras da plateia serem amovíveis, permitindo adaptar a sala de acordo com o tipo de espetáculo a apresentar - ao espaço polivalente do piso 2, com vistas para a Avenida Serpa Pinto, onde se realizam atividades paralelas e onde funciona um Café-Concerto, com uma comunicação versátil à plateia.
No apoio a estes espaços, é necessário um conjunto de infraestruturas técnicas e de apoio, as quais ocupam uma grande área do teatro, distribuindo-se, na generalidade, pelos pisos enterrados e pelos pisos superiores do edifício.
Além destes espaços meramente técnicos, existe uma sala no piso 7 para ensaios, com uma dimensão muito semelhante à do palco principal. Acresce, ainda, que a cobertura do teatro é em cobre e encimada por uma torre com 14 metros de altura.
Com a denominação atual de Teatro Municipal de Matosinhos Constantino Nery, este é um espaço polivalente que acolhe espetáculos de teatro, música, dança, exposições e cinema.
-
Quem foi Ló Ferreira?
Emídio José Ló Ferreira (1864-1942)
Benemérito, Comendador da Ordem de Cristo, Visconde de Trevões
Nascido na aldeia de Trevões, concelho de S. João da Pesqueira, Ló Ferreira desde cedo se viu na necessidade de sair da sua terra natal. Assim, foi Matosinhos que o acolheu, entre 1884 e 1885, como trabalhador do porto de Leixões. Oriundo duma família numerosa, e após contrair matrimónio, em 1886, com Cacilda Marques, Ló Ferreira partiu para o Brasil, em 1894, em busca de fortuna. Em Manaus (Amazónia), e com a ajuda do governador do Estado, o Coronel António Constantino Nery (1859-1926), granjeou grossos cabedais, no setor da construção civil e da borracha.
Em homenagem ao seu protetor em terras brasileiras, fundou, nesta cidade, em 1905, o Cine-Teatro Constantino Nery. Ainda em Matosinhos, e após regressar em definitivo à sua terra de adoção, construiu o Palacete de Trevões (1909-1913), projecto do arquitecto António Alves da Silva, residência da sua família e atual Museu da Memória de Matosinhos; impulsionou, juntamente com outros, a construção do Bairro dos Pescadores; e ordenou o calcetamento de todo o adro da Igreja do Bom Jesus de Matosinhos, obra esta inteiramente suportada pela sua fortuna.
Foi condecorado com o grau de Comendador da Ordem de Cristo, em 1906, pelo rei D. Carlos; em 1907, o mesmo monarca concede o titulo de Fornecedor da Casa Real a Ló Ferreira, “proprietário no Douro e exportador dos excellentes vinhos produzidos nas suas quintas da Boa Vista, Tenaria e Entroncamento, em Villa Real.”.
Teve uma intensa vida associativa em Matosinhos, destacando-se ao seguintes cargos: Presidente da Associação Comercial e Industrial de Matosinhos em 1907;
Mesário e ilustre benemérito da Misericórdia de Matosinhos; primeiro Presidente da Assembleia Geral do Leixões S.C., em 1907;
Enveredou também pela ação política, tendo desempenhado as funções de Vice-Presidente da Câmara de Bouças, entre 1909 e 1910.
O rei D. Manoel II concedeu-lhe, em 1909, o título de 1.º Visconde de Trevões, em virtude dos benefícios prestados às vilas de Trevões e São João da Pesqueira.
Homem simples, mas inteligente, foi benemérito ilustre até ao momento em que inicia carreira no setor das pescas, para o qual não estava preparado e que, pouco a pouco, lhe consumiu os bens.
Faleceu com 78 anos, a 26 de outubro de 1942, na sua Quinta da Almodena, em Vila Real.
Integra a toponímia de Matosinhos, Vila Real e Peniche.

Veja ao vivo a pintura a óleo de Emídio Ló Ferreira, no Museu da Memória de Matosinhos
-
Quem foi Constantino Nery?
António Constantino Nery (1859-1926)
Militar, senador e governador do Estado do Amazonas
António Constantino Nery nasceu em 1859, presumivelmente em Manaus. Seu irmão Silvério Nery foi seu antecessor no governo do Amazonas (1900-1903).
Oficial do Exército formado pela Escola Militar do Rio de Janeiro, chegou ao posto de major de engenheiros. Em 1901, durante o governo de seu irmão Silvério Nery, foi eleito para o Senado Federal. Como senador favoreceu a contratação da Manaus Harbour Ltda para a construção do porto de Manaus. Deixou o Senado em 1904 para se candidatar a governador do Amazonas. Constantino Nery foi eleito e empossado governador do Amazonas em 23 de julho de 1904.
Favorecido pelo crescimento económico decorrente da exportação da borracha, Constantino Nery foi o responsável por importantes obras no estado do Amazonas. Ordenou a construção da penitenciária do estado, batizada de Casa de Detenção de Manaus, obra que teve início em 1904, sob coordenação de Emídio José Lo Ferreira, sendo inaugurada em 1907. Entre outros empreendimentos, construiu uma importante avenida na capital amazonense, que veio a ter o seu nome. Os dispendiosos projetos executados causaram um desequilíbrio nas contas públicas, o que lhe rendeu a fama de mau pagador.
O seu governo chegou ao fim em 23 de julho de 1908.
Faleceu na cidade de Belém, no dia 19 de setembro de 1926.

Fontes do texto:
-BITTENCOURT, A. Dicionário; CASA CIVIL. GOV. AM.
-FERREIRA, C.; VALOIS, L. Sistema; SENADO.
Fonte da imagem:
www.facebook.com/bellamanaos
-
O novo edifício
Alguns dados sobre a obra
O pragmatismo da funcionalidade e a existência de um programa relativamente aberto, junto à sedução da forma que fomos encontrando, foi-nos convencendo sobre a melhor solução para o que deverá restar do Cine-Teatro e, sobretudo, para o que se poderá fazer de novo em prefiguração das novas “performances” da contemporaneidade.
Acabamos por aceitar, com alguma convicção, a última proposta programática: sala de espetáculos (sem nos afastarmos do teatro à italiana, como modelo estrutural) e espaço polivalente.
O conjunto foi pensado para uma heterodoxia funcional que, além de o colocar no seio cosmopolitismo mais avançado, gostaríamos que não retirasse, antes conferisse, uma maior dignidade e atualidade a uma obra com esta importância simbólica.
Trata-se de uma remodelação, o que pressupõe a legitimação de uma memória que deverá ser preservada. Mas de que memória se trata? Com a consciência de que a memória é, também, uma consciência presente, consolidamos fisicamente a fachada existente, enriquecendo a sua mensagem para a cidade com imagens virtuais dos novos conteúdos, e consolidamos afetivamente a recordação, criando espaços para os renovados prazeres do espetáculo que nos lembrarão os antigos, assim estabelecendo a ponte que desejamos, entre o passado e o futuro.
Condicionado por uma envolvente construída até aos limites da sua própria ocupação, o edifício, ou o que dele resta, designadamente nos seus elementos mais representativos – volumetria geral e desenho da fachada – apresenta-se como elemento de construção de um ambiente urbano cuja qualidade, por menos válida na sua proximidade, o notabiliza. O preenchimento, com construção, de todo o seu entorno, ao mesmo tempo que contribui para o seu enquadramento na malha da cidade, restringe e impõe essenciais cuidados ao nível da intervenção a propor.
Preservamos a fachada, não só por ser obrigatório programaticamente, mas também por nos parecer cenário reinterpretável como fronteira que não separa, sinal dos novos tempos.
Assim temos dois setores. Um, o espaço polivalente, espaço de comunicação, que se relaciona de maneira informal com a chamada sala de espetáculos e com o exterior. Esta última é uma área mais especializada, em que alguns elementos de leitura arquitetónica constituem a própria mecânica de cena e se estendem, democraticamente, a todo o espaço. Coerentemente furtamo-nos à tradição setecentista do teatro hierarquizado evitando, por isso, a permanência do arco do proscénio.
É uma ideia ambiciosa que implica a construção de uma máquina rigorosa, de funcionamento perfeito de que não se podem alhear, felizmente, os aspetos lúdicos que permitem cruzar a mecânica com a manipulação das imagens e do som.
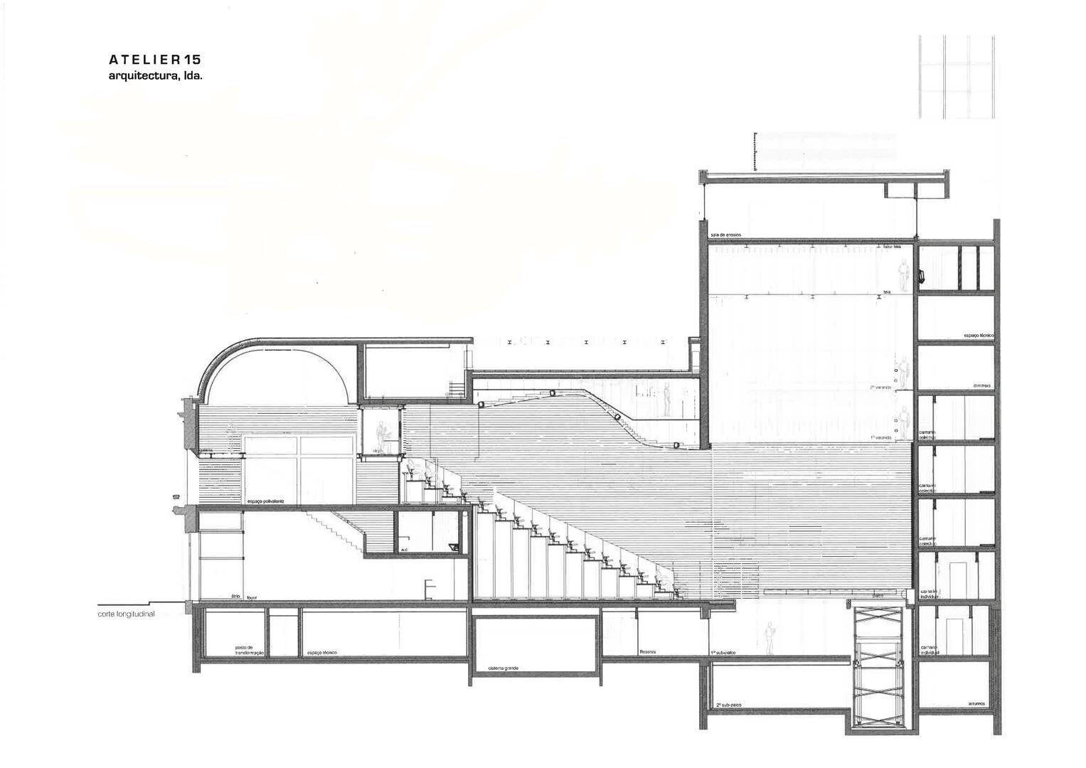
O projeto pode enquadrar-se tipologicamente no grupo das salas multifuncionais em auditório. Destaca-se a configuração da sala num só volume palco/sala, sem proscénio, com bancada retráctil, dividida em três módulos, para uma lotação de 235 lugares.
Este espaço, pelas suas características, estabelece-se como sala de acolhimento, consagrando, também, a possibilidade de criação de diferentes produções ao propor uma ampla sala de ensaios, situada sobre a torre de cena.
O projeto permite uma montagem de cena à italiana, em sala contraposta, uma montagem de cena em arena, tirando partido da mobilidade da bancada e, por último, uma multiplicidade de configurações flexíveis quando a bancada se encontra recolhida, transformando o espaço num amplo salão, ainda com a possibilidade de se ligar ao espaço polivalente.
É de referir que o espaço útil de cena, em montagem à italiana, possibilita a receção de produções de média dimensão, em boas condições.
O espaço apresenta uma torre de palco com 16m de altura, até à teia, constituída por um piso em gradil de ferro e falsa teia a 2m de altura, duas varandas à esquerda e à direita de cena ligadas entre si por varandas na parede de fundo do palco. Recorrendo a maquinaria motorizada e manual para efetuar as manobras de cena, um adequado conjunto de varas duplas motorizadas especialmente dedicado à utilização de equipamento de iluminação de cena e, muito mais do que isso, a suspensão de todo o tipo de elementos, desde cenários a atores ou écran de cinema, permitindo uma grande versatilidade performativa.
A opção tomada por maquinaria motorizada, deve-se à necessidade de não ocupar uma das paredes laterais do palco com um sistema de contra-pesos que iria roubar, quer espaço útil de cena, quer a mais valia de um espaço amplo sem obstáculos nas paredes.
Existe ainda um segundo sub-palco reservado ao armazenamento de equipamentos técnicos de cena tal como projetores, estrados niveladores etc. podendo, ainda, servir para oficina de carpintaria de cena, para construção/reparação. O palco, 1º sub-palco e 2º sub-palco encontram-se ligados por uma plataforma elevatória que garante os necessários acessos de equipamentos de porte médio.
Os camarins, dispostos em altura junto ao palco, são, tal como a sala de ensaios e as teias, sala de dimmers e 2ª varanda, 1ª varanda e ainda sanitários, palco, 1º e 2º sub-palcos, servidos por escadas e por elevador.
A sala apresenta as paredes, pavimento e teto forrados com madeira de tonalidade escura. Este último, embora sendo fixo, adapta-se a diferentes situações acústicas e eletroacústicas.
A régie ocupa um papel importante no conjunto dos equipamentos do teatro e simultaneamente se assume como charneira, dividindo equipamentos e infraestruturas entre os dois espaços.
A sua dimensão serve perfeitamente para albergar um posto de operação de som, um posto de operação de luz, colocação de projetor vídeo, projetor de cinema que também poderá servir ambos os espaços e follow spot.
No café concerto existe uma copa e zona de serviço. O espaço é apoiado por uma galeria que, enriquecendo a capacidade de uso daquela, garante o acesso à cabina técnica.
O acesso dos camarins a este espaço é feito através de um corredor situado ao nível do 1º sub-palco, com ligação através de elevador.
Parece-nos redundante descrever outros aspetos funcionais, relacionados com o desempenho normal de qualquer edifício deste género, legíveis claramente nos desenhos e na maqueta apresentada.
Foi especialmente cuidada e redimensionada toda a zona de receção, que auferirá de espaços dignificados, mais diretamente ligados ao exterior ou ao interior, inexistentes no edifício antigo.
2005/2006 Atelier 15 – Arquitectura, Lda.
